Lokal użytkowy Sopot Centrum, Niepodległości
Sopot / Centrum Pokaż na mapie ›
Ogłoszenie archiwalne Wygasło: Niedziela, 30 Listopad, 2025 21:18
5 280 zł
Szczegóły ogłoszenia
- Kategoria: Biura i lokale / Do wynajęcia
- Przeznaczenie:Biurowe
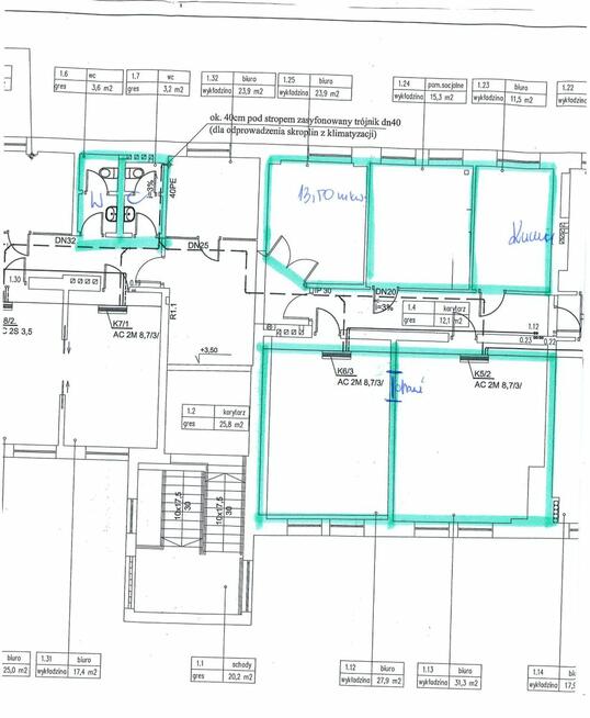
- Powierzchnia:88 m2
- Sprzedaż:Pośrednik
- Cena: 5 280 zł
Opis oferty
Biurowiec w świetnym punkcie komunikacyjnym. Położenie budynku gwarantuje wygodny dojazd ze wszystkich części Trójmiasta, zarówno samochodem, jak i komunikacją miejską (w pobliżu znajduje się bowiem stacja SKM oraz liczne przystanki autobusowe). Budynek w bardzo dobrym standardzie technicznym, odremontowany, monitorowany.- 88 m2 powierzchni biurowej: w tym pomieszczenia połączone drzwiami wewnętrznymi: 27,90m2; 31,30m2, 13,5m2, 15,3m2
- toalety wraz z kuchnią do wspólnego użytkowania
- 4 miejsca postojowe (w tym z tyłu budynku)
- czynsz: 5280,00 zł netto/m-c
- media średnio: 27 za metr zł netto/m-c (woda, gaz, śmieci, monitoring, ochrona, prąd, sprzątanie cz. wspólnych)
Średnia 27: 34 zł-zima, 20zł lato
Numer oferty: 320373
Sprawdź zainteresowanie tym ogłoszeniem
Wyświetlenia
Data dodania
Ostatnio widziany
Obserwujących
Wysłane zapytania
Odsłony telefonu
Powiadom o podobnych ogłoszeniach
Lokalizacja: Sopot
Kategoria: Nieruchomości » Biura i lokale » Do wynajęcia
Cena: od 4500 zł do 6000 zł Powierzchnia : od 75 m2 do 101 m2
Chcę otrzymywać powiadomienia o nowych ofertach
To ogłoszenie jest archiwalne i może być nieaktualne.
Michał Euro - Rent N
Konto firmowe
Na Lento.pl od 16 mar 2023
Odpowiada szybko
Strona użytkownika
- Wypromuj ogłoszenie
- Zgłoś naruszenie
- Drukuj ulotkę
- Edytuj/usuń ogłoszenie
- Udostępnij ogłoszenie
- Dodaj na Facebook













